Espace propriétaire
fr

Votre recherche

Nantes (44200)

1 pièces - 17,66 m²

Investissement Idéal : Studo en Résidence Etudiante Gestion locative Zero souci

70 000 €
Ref : NA1107
A propos de ce bien

Opportunité d'investissement à Nantes : Studio étudiant clé en main


Investissez en toute sérénité à Nantes avec ce studio de 17.66m², situé au 1er étage d'une résidence étudiante recherchée, dans le quartier dynamique des Îles de Nantes. Ce bien, parfaitement agencé pour les besoins des étudiants, comprend une entrée avec kitchenette, une pièce principale optimisée pour le sommeil, les repas et les études, ainsi qu'une salle de bain complète avec douche et WC.


L'acquisition de cet appartement vous assure une gestion locative simplifiée et sans souci. Vous bénéficiez d'un bail commercial avec un exploitant fort de plus de 30 ans d'expérience. Ce contrat garantit le versement d'un loyer fixe, indépendamment du taux d'occupation. De plus, les charges d'entretien et de copropriété sont prises en charge par le gestionnaire, ce qui maximise votre rentabilité.


Cet investissement est une solution clé en main idéale pour un premier achat immobilier ou pour diversifier votre patrimoine existant avec un bien de qualité, idéalement placé et à la fois productif et sécurisé.


Contactez nous pour plus d'informations !!! 


Les informations sur les risques auxquels ce bien est exposé sont disponibles sur le site Géorisques
Descriptif de ce bien
Général
Code postal 44200
Nombre de pièces 1
Etage 1
Vue Ville
Détails
Nb de salle d'eau 1
Cuisine Kitchenette
Type de cuisine Equipée
Mode de chauffage Electrique
Type de chauffage Convecteur
Format de chauffage Collectif
Exposition Ouest
Année de construction 2018
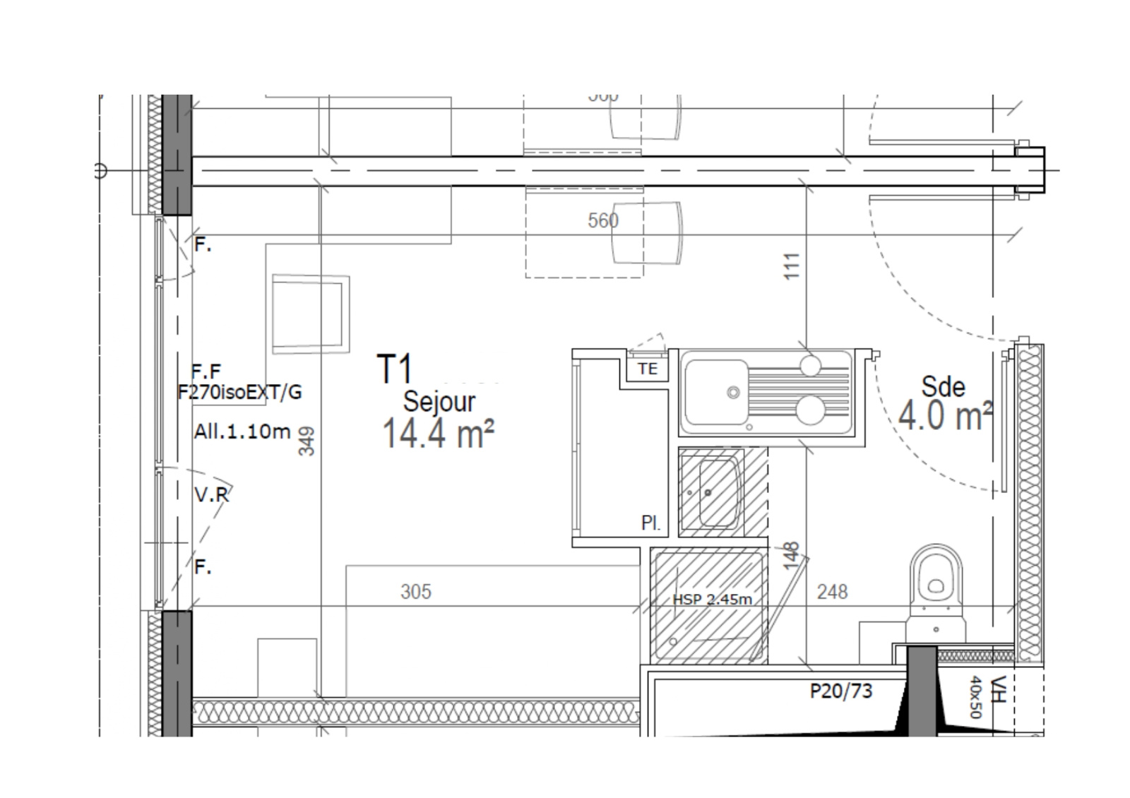
Composition
Rez de chaussée
Salle d'eau - WC 3.32 m²

Entrée - Cuisine 4.13 m²

pièce à vivre 10.21 m²

Financier
Prix de vente 70 000 €
Les honoraires d'agence seront intégralement à la charge du vendeur  
Charges 36 €
Taxe foncière annuelle 308 €
Energie
DPE GES
Copropriété
Copropriété OUI
Lot n° 105
nombre de lots 309
Quote Part annuelle des charges 434 €
plan de sauvegarde NON
statut du syndic pas de procédure en cours
Contacter pour ce bien
L'agence
Téléphone 0649107079
Adresse
84 avenue des mimosas 64700 Hendaye

* Champ obligatoire

Les informations recueillies sur ce formulaire sont enregistrées dans un fichier informatisé par La Boite Immo agissant comme Sous-traitant du traitement pour la gestion de la clientèle/prospects de l'Agence / du Réseau qui reste Responsable du Traitement de vos Données personnelles. La base légale du traitement repose sur l'intérêt légitime de l'Agence / du Réseau. Elles sont conservées jusqu'à demande de suppression et sont destinées à l'Agence / au Réseau. Conformément à la loi « informatique et libertés », vous disposez des droits d’accès, de rectification, d’effacement, d’opposition, de limitation et de portabilité de vos données. Vous pouvez retirer votre consentement à tout moment en contactant directement l’Agence / Le Réseau. Consultez le site https://cnil.fr/fr pour plus d’informations sur vos droits. Si vous estimez, après avoir contacté l'Agence / le Réseau, que vos droits « Informatique et Libertés » ne sont pas respectés, vous pouvez adresser une réclamation à la CNIL. Nous vous informons de l’existence de la liste d'opposition au démarchage téléphonique « Bloctel », sur laquelle vous pouvez vous inscrire ici : https://www.bloctel.gouv.fr Dans le cadre de la protection des Données personnelles, nous vous invitons à ne pas inscrire de Données sensibles dans le champ de saisie libre.
Ce site est protégé par reCAPTCHA, les Politiques de Confidentialité et les Conditions d'Utilisation de Google s'appliquent.

Découvrir nos outils