Espace propriétaire
fr

Votre recherche

La mongie (65200)

2 pièces - 34,46 m²

T2 avec Terrasse plein Sud - 34.46m² - Résidence avec piscine et parking souterrain

115 000 €
Ref : TOUC174
A propos de ce bien

Face aux pistes du plus grand domaine skiable des Pyrénées françaises, au pied de l’observatoire du Pic du Midi et de la mythique route du col du Tourmalet. La Résidence Tourmalet , classée 3 étoiles, composée de 3 bâtiments à l’architecture pyrénéenne, surplombe la station face aux pistes du plus grand domaine skiable des Pyrénées Françaises, au pied de l’observatoire du Pic du Midi. Cette résidence propose des appartements orientés plein sud et à 50 m des pistes via le pont de neige. Meublés, ils disposent d'une terrasse et sont totalement équipés.


Les informations sur les risques auxquels ce bien est exposé sont disponibles sur le site Géorisques
Descriptif de ce bien
Général
Code postal 65200
Surface loi Carrez (m²) 34,46 m²
Nombre de chambre(s) 1
Nombre de pièces 2
Ascenseur NON
Vue Sur les pistes
Détails
Nb de salle de bains 1
Cuisine Kitchenette
Type de cuisine Equipée
Balcon OUI
Exposition Sud
Année de construction 2009
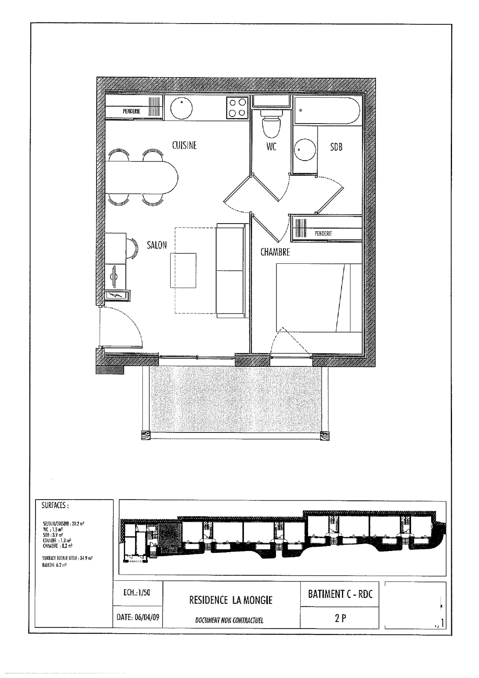
Composition
Rez de chaussée
Dégagement 1.36 m²

WC 1.36 m²

balcon 6.49 m²

chambre 7.18 m²

Séjour / Kitchenette 19.18 m²

salle de bain 3.72 m²

Financier
Prix de vente 115 000 €
Les honoraires d'agence seront intégralement à la charge du vendeur  
Charges 177 €
Taxe foncière annuelle 823 €
Energie
DPE GES
Copropriété
Copropriété OUI
Lot n° 173
nombre de lots 104
Quote Part annuelle des charges 2 126 €
plan de sauvegarde NON
statut du syndic pas de procédure en cours
Contacter pour ce bien
L'agence
Téléphone 0649107079
Adresse
84 avenue des mimosas 64700 Hendaye

* Champ obligatoire

Les informations recueillies sur ce formulaire sont enregistrées dans un fichier informatisé par La Boite Immo agissant comme Sous-traitant du traitement pour la gestion de la clientèle/prospects de l'Agence / du Réseau qui reste Responsable du Traitement de vos Données personnelles. La base légale du traitement repose sur l'intérêt légitime de l'Agence / du Réseau. Elles sont conservées jusqu'à demande de suppression et sont destinées à l'Agence / au Réseau. Conformément à la loi « informatique et libertés », vous disposez des droits d’accès, de rectification, d’effacement, d’opposition, de limitation et de portabilité de vos données. Vous pouvez retirer votre consentement à tout moment en contactant directement l’Agence / Le Réseau. Consultez le site https://cnil.fr/fr pour plus d’informations sur vos droits. Si vous estimez, après avoir contacté l'Agence / le Réseau, que vos droits « Informatique et Libertés » ne sont pas respectés, vous pouvez adresser une réclamation à la CNIL. Nous vous informons de l’existence de la liste d'opposition au démarchage téléphonique « Bloctel », sur laquelle vous pouvez vous inscrire ici : https://www.bloctel.gouv.fr Dans le cadre de la protection des Données personnelles, nous vous invitons à ne pas inscrire de Données sensibles dans le champ de saisie libre.
Ce site est protégé par reCAPTCHA, les Politiques de Confidentialité et les Conditions d'Utilisation de Google s'appliquent.

Découvrir nos outils