Espace propriétaire
fr

Votre recherche

Bruges (33520)

1 pièces - 34,27 m²

STUDIO 34m² - RESIDENCE SENIOR - BRUGES LE TASTA

161 500 €
Ref : VIV114
A propos de ce bien

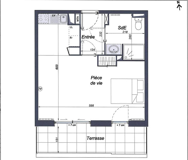
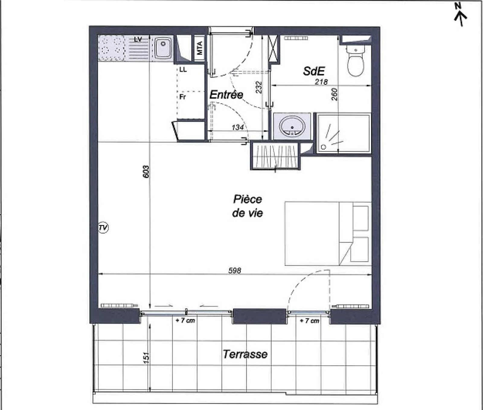
Au sein d’une Résidence Sénior sécurisée, ce studio récent (2020) dispose d'une situation idéale pour les personnes à la recherche de quiétude au cœur d'un quartier dynamique, le quartier du tasta à Bruges.
Proche du Tram C et des bords du Lac de Bordeaux, ce joli T1 de 34m² situé au 1er étage comprend :

- une entrée avec placard,

- pièce à vivre de 26 m²

- une cuisine ouverte sur la pièce à vivre ,

- une salle d’eau avec douche à l’italienne

- un balcon de 9.40m² exposé Sud

La résidence est très bien entretenue et dispose d'une grande piscine, un terrain de pétanque.

Les informations sur les risques auxquels ce bien est exposé sont disponibles sur le site Géorisques
Descriptif de ce bien
Général
Code postal 33520
Nombre de pièces 1
Etage 1
Vue Citadine
Détails
Nb de salle d'eau 1
Cuisine Kitchenette
Mode de chauffage Gaz de ville
Type de chauffage Radiateur
Format de chauffage Collectif
Balcon OUI
Cave NON
Nombre de parking 1
Exposition Sud
Année de construction 2018
Composition
Rez de chaussée
entrée 2.95 m²

balcon 9.15 m²

Salle d'eau - WC 4.97 m²

Séjour /Chambre 21.30 m²

Coin cuisine 5.05 m²

Financier
Prix de vente honoraires TTC inclus 161 500 €
Charges 28 €
Taxe foncière annuelle 755 €
Energie
DPE GES
Copropriété
Copropriété OUI
Lot n° 216
nombre de lots 336
Quote Part annuelle des charges 364 €
plan de sauvegarde NON
statut du syndic pas de procédure en cours
Contacter pour ce bien
L'agence
Téléphone 0649107079
Adresse
84 avenue des mimosas 64700 Hendaye

* Champ obligatoire

Les informations recueillies sur ce formulaire sont enregistrées dans un fichier informatisé par La Boite Immo agissant comme Sous-traitant du traitement pour la gestion de la clientèle/prospects de l'Agence / du Réseau qui reste Responsable du Traitement de vos Données personnelles. La base légale du traitement repose sur l'intérêt légitime de l'Agence / du Réseau. Elles sont conservées jusqu'à demande de suppression et sont destinées à l'Agence / au Réseau. Conformément à la loi « informatique et libertés », vous disposez des droits d’accès, de rectification, d’effacement, d’opposition, de limitation et de portabilité de vos données. Vous pouvez retirer votre consentement à tout moment en contactant directement l’Agence / Le Réseau. Consultez le site https://cnil.fr/fr pour plus d’informations sur vos droits. Si vous estimez, après avoir contacté l'Agence / le Réseau, que vos droits « Informatique et Libertés » ne sont pas respectés, vous pouvez adresser une réclamation à la CNIL. Nous vous informons de l’existence de la liste d'opposition au démarchage téléphonique « Bloctel », sur laquelle vous pouvez vous inscrire ici : https://www.bloctel.gouv.fr Dans le cadre de la protection des Données personnelles, nous vous invitons à ne pas inscrire de Données sensibles dans le champ de saisie libre.
Ce site est protégé par reCAPTCHA, les Politiques de Confidentialité et les Conditions d'Utilisation de Google s'appliquent.

Découvrir nos outils