Espace propriétaire
fr

Votre recherche

Ciboure (64500)

2 pièces - 29,55 m²

QUARTIER SOCOA - PARKING INCLUS

130 000 €
Ref : SEA006
A propos de ce bien

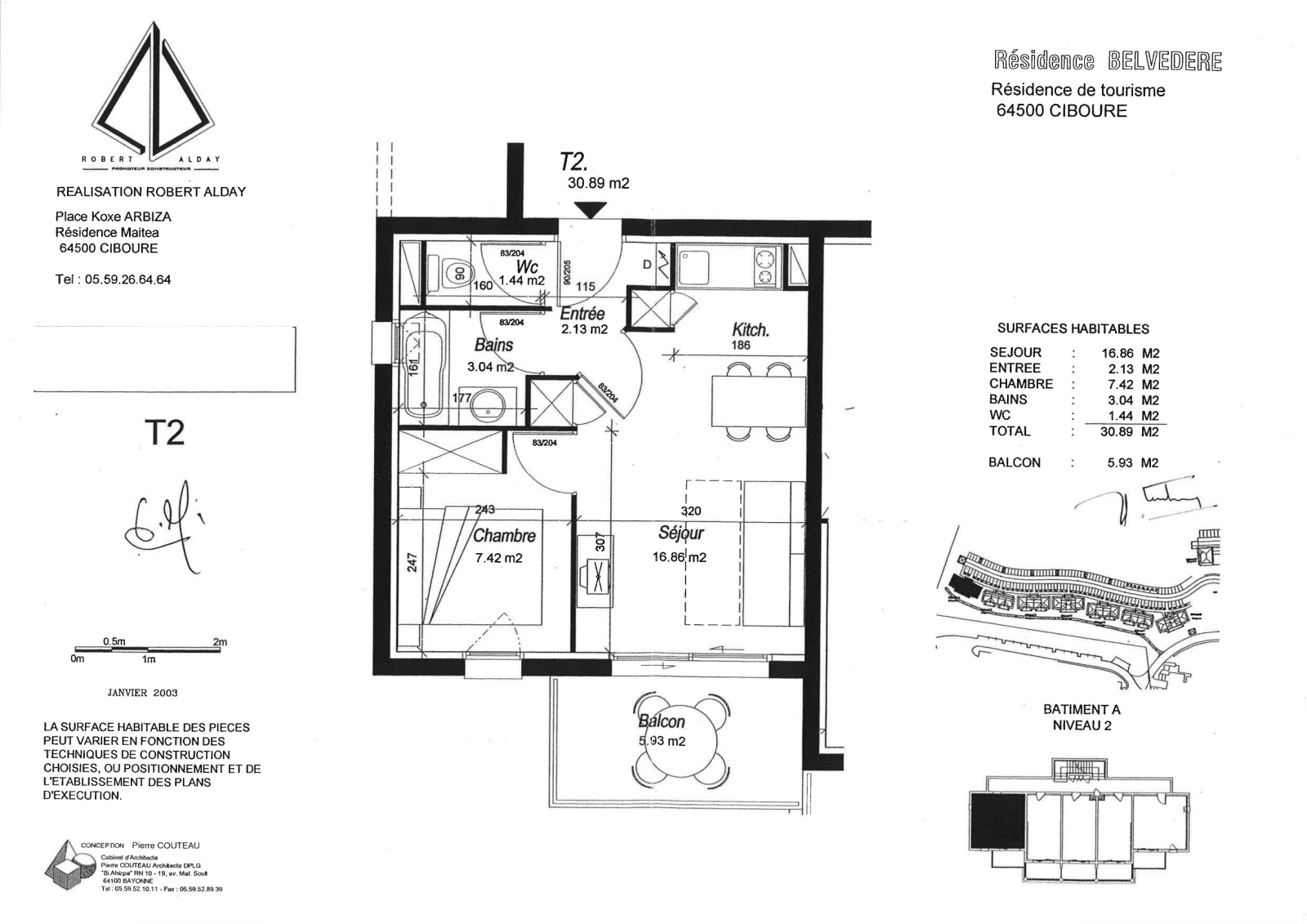
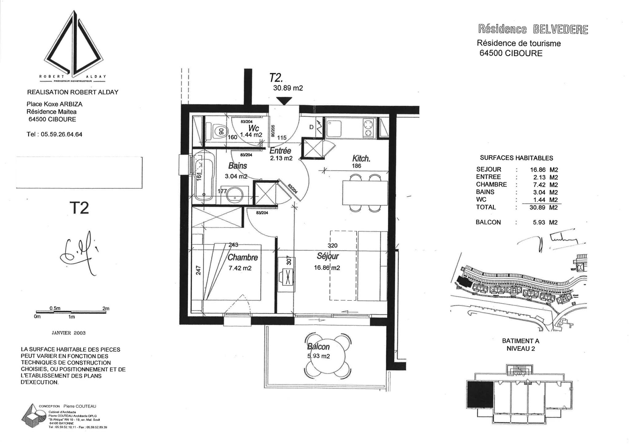
Proche des commerces et de la plage de Socoa, cette résidence de tourisme est idéalement située dans un quartier calme et résidentiel. Installée sur une colline, cette copropriété de 116 lots répartis sur 7 bâtiments, offre également une piscine. L’appartement proposé à la vente est un T2 situé au 1er étage. Le parking privé et sécurisé se situe au pied de la résidence.

Pour plus de confort, l'appartement, d’une surface de 29.55m², est vendu meublé et se compose :
- d'une pièce de vie avec kitchenette ouverte,
- une terrasse de 6 m² donnant sur le parc de la résidence,
- une Salle de bains,
- WC séparés,
- de nombreux rangements.

- une place de parking complète le lot

Bien vendu avec bail commercial. La Résidence est gérée par un exploitant qui s'occupe du remplissage et reverse au propriétaire un loyer défini dans le contrat et versé trimestriellement.


Les informations sur les risques auxquels ce bien est exposé sont disponibles sur le site Géorisques
Descriptif de ce bien
Général
Code postal 64500
Surface loi Carrez (m²) 29,55 m²
Nombre de chambre(s) 1
Nombre de pièces 2
Etage 1
Vue Quartier Socoa
Détails
Nb de salle de bains 1
Cuisine Kitchenette
Type de cuisine Equipée
Mode de chauffage Electrique
Type de chauffage Radiateur
Format de chauffage Individuel
Balcon OUI
Nombre de parking 1
Exposition Ouest
Année de construction 2003
Composition
Rez de chaussée
chambre 7.45 m²

Séjour / Kitchenette 15.82 m²

balcon 6.09 m²

salle de bain 2.98 m²

WC 1.45 m²

Financier
Prix de vente 130 000 €
Les honoraires d'agence seront intégralement à la charge du vendeur  
Charges 133 €
Taxe foncière annuelle 747 €
Energie
DPE GES
Copropriété
Copropriété OUI
Lot n° 6
nombre de lots 234
Quote Part annuelle des charges 1 598 €
plan de sauvegarde NON
statut du syndic pas de procédure en cours
Contacter pour ce bien
L'agence
Téléphone 0649107079
Adresse
84 avenue des mimosas 64700 Hendaye

* Champ obligatoire

Les informations recueillies sur ce formulaire sont enregistrées dans un fichier informatisé par La Boite Immo agissant comme Sous-traitant du traitement pour la gestion de la clientèle/prospects de l'Agence / du Réseau qui reste Responsable du Traitement de vos Données personnelles. La base légale du traitement repose sur l'intérêt légitime de l'Agence / du Réseau. Elles sont conservées jusqu'à demande de suppression et sont destinées à l'Agence / au Réseau. Conformément à la loi « informatique et libertés », vous disposez des droits d’accès, de rectification, d’effacement, d’opposition, de limitation et de portabilité de vos données. Vous pouvez retirer votre consentement à tout moment en contactant directement l’Agence / Le Réseau. Consultez le site https://cnil.fr/fr pour plus d’informations sur vos droits. Si vous estimez, après avoir contacté l'Agence / le Réseau, que vos droits « Informatique et Libertés » ne sont pas respectés, vous pouvez adresser une réclamation à la CNIL. Nous vous informons de l’existence de la liste d'opposition au démarchage téléphonique « Bloctel », sur laquelle vous pouvez vous inscrire ici : https://www.bloctel.gouv.fr Dans le cadre de la protection des Données personnelles, nous vous invitons à ne pas inscrire de Données sensibles dans le champ de saisie libre.
Ce site est protégé par reCAPTCHA, les Politiques de Confidentialité et les Conditions d'Utilisation de Google s'appliquent.

Découvrir nos outils