Espace propriétaire
fr

Votre recherche

Sous-offre
Ciboure (64500)

1 pièces - 23,59 m²

PROCHE PLAGE SOCOA - QUARTIER CALME

99 000 €
Ref : SEA012
A propos de ce bien

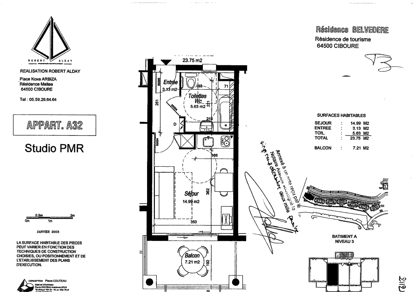
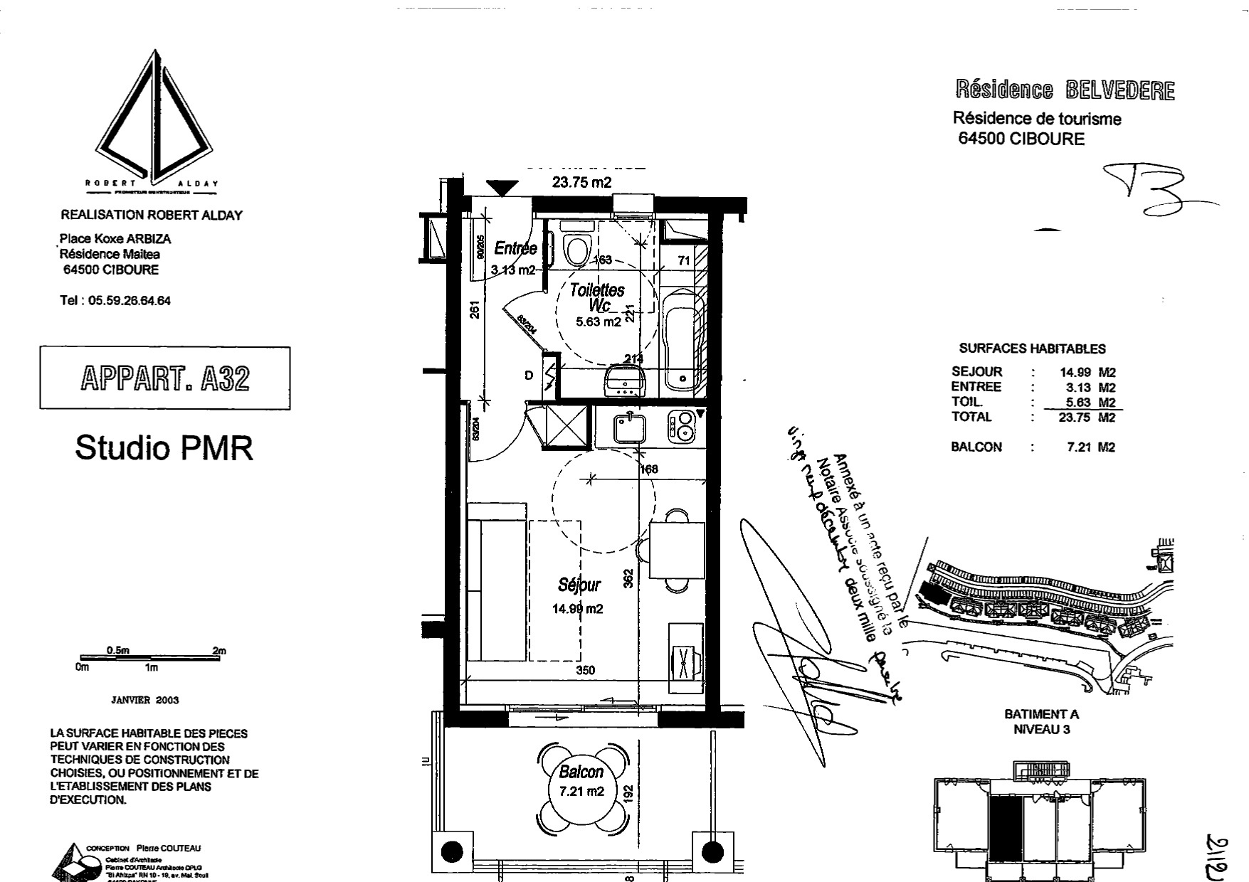
Installée sur une colline, dans un quartier calme, au sein d’une Résidence de Tourisme ce charmant studio, est idéalement situé, proche des commerces et de la plage de Socoa.

Le studio est vendu meublé et se compose :
- d'une pièce de vie avec kitchenette ouverte,
- une terrasse de 7.75 m² offrant une jolie vue sur le quartier de Socoa,
- une salle de bains avec WC,
- une place de parking extérieur

Sous mandat de gestion avec une agence immobilière .

Ne manquez pas cette opportunité unique d'investir dans un cadre idyllique à Ciboure


Les informations sur les risques auxquels ce bien est exposé sont disponibles sur le site Géorisques
Descriptif de ce bien
Général
Code postal 64500
Surface loi Carrez (m²) 23,59 m²
Nombre de pièces 1
Etage 2
Vue Quartier Socoa
Détails
Nb de salle de bains 1
Cuisine Kitchenette
Type de cuisine Equipée
Mode de chauffage Electrique
Type de chauffage Convecteur
Format de chauffage Individuel
Balcon OUI
Nombre de parking 1
Année de construction 2003
Composition
Rez de chaussée
Séjour / Kitchenette 14.78 m²

Salle de bains - WC 5.66 m²

balcon 7.75 m²

entrée 3.15 m²

Financier
Prix de vente honoraires TTC inclus 99 000 €
Charges 116 €
Taxe foncière annuelle 615 €
Energie
DPE GES
Copropriété
Copropriété OUI
Lot n° 12
nombre de lots 116
Quote Part annuelle des charges 1 393 €
plan de sauvegarde NON
statut du syndic pas de procédure en cours
Contacter pour ce bien
L'agence
Téléphone 0649107079
Adresse
84 avenue des mimosas 64700 Hendaye

* Champ obligatoire

Les informations recueillies sur ce formulaire sont enregistrées dans un fichier informatisé par La Boite Immo agissant comme Sous-traitant du traitement pour la gestion de la clientèle/prospects de l'Agence / du Réseau qui reste Responsable du Traitement de vos Données personnelles. La base légale du traitement repose sur l'intérêt légitime de l'Agence / du Réseau. Elles sont conservées jusqu'à demande de suppression et sont destinées à l'Agence / au Réseau. Conformément à la loi « informatique et libertés », vous disposez des droits d’accès, de rectification, d’effacement, d’opposition, de limitation et de portabilité de vos données. Vous pouvez retirer votre consentement à tout moment en contactant directement l’Agence / Le Réseau. Consultez le site https://cnil.fr/fr pour plus d’informations sur vos droits. Si vous estimez, après avoir contacté l'Agence / le Réseau, que vos droits « Informatique et Libertés » ne sont pas respectés, vous pouvez adresser une réclamation à la CNIL. Nous vous informons de l’existence de la liste d'opposition au démarchage téléphonique « Bloctel », sur laquelle vous pouvez vous inscrire ici : https://www.bloctel.gouv.fr Dans le cadre de la protection des Données personnelles, nous vous invitons à ne pas inscrire de Données sensibles dans le champ de saisie libre.
Ce site est protégé par reCAPTCHA, les Politiques de Confidentialité et les Conditions d'Utilisation de Google s'appliquent.

Découvrir nos outils