Espace propriétaire
fr

Votre recherche

La mongie (65200)

3 pièces - 47,71 m²

DUPLEX T3 - OCCASION RARE

178 000 €
Ref : PDMB23
A propos de ce bien

Votre pied-à-terre idéal à la montagne :

Laissez-vous séduire par ce bel appartement DUPLEX T3 meublé avec terrasse. Niché au 2°/3°étage d'une résidence de charme aux accents pyrénéens (bois et pierre). Son orientation plein sud vous garantit une luminosité optimale sur la terrasse de 8 m². La résidence Pic du Midi vous permet de séjourner entre 300m et 400m des pistes de ski (accès possible via navette gratuite l'hiver). Elle se compose de 10 petits bâtiments à l’architecture pyrénéenne alliant bois et pierre. Face aux massifs, les appartements offrent une vue imprenable sur les Pyrénées... Un lieu idéal pour des vacances en famille !

Ce charmant T3 en duplex d'environ 60m² de surface au sol (47m² li carrez) parfaitement agencé offre une entrée avec rangements, une salle de bains avec WC séparés, et une pièce de vie lumineuse avec kitchenette s'ouvrant sur une belle loggia de 8,15 m². Ce niveau comprend également une chambre avec placard. À l'étage, l'espace nuit se compose d'une seconde chambre avec sa propre salle d'eau (et WC) ainsi qu'une mezzanine avec placard. Un appartement fonctionnel, riche en rangements, parfait pour un pied a terre à la Montagne !

Ne loupez pas cette occasion rare !!!!. Pour toute question ou visite, contactez nous ! À très bientôt.


Zone soumise à une obligation légale de débroussaillement.
Les informations sur les risques auxquels ce bien est exposé sont disponibles sur le site Géorisques
Descriptif de ce bien
Général
Code postal 65200
Surface loi Carrez (m²) 47,71 m²
Nombre de chambre(s) 2
Nombre de pièces 3
Etage 2
Nombre de niveaux 2
Ascenseur NON
Vue Piste de ski
Détails
Nb de salle de bains 1
Nb de salle d'eau 1
Cuisine Kitchenette
Type de cuisine Equipée
Mode de chauffage Electrique
Type de chauffage Convecteur
Format de chauffage Individuel
Balcon OUI
Nombre de parking 1
Exposition Sud
Année de construction 2005
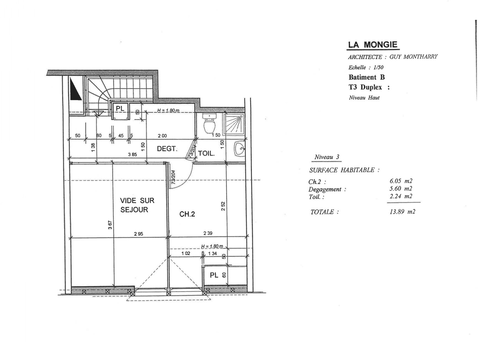
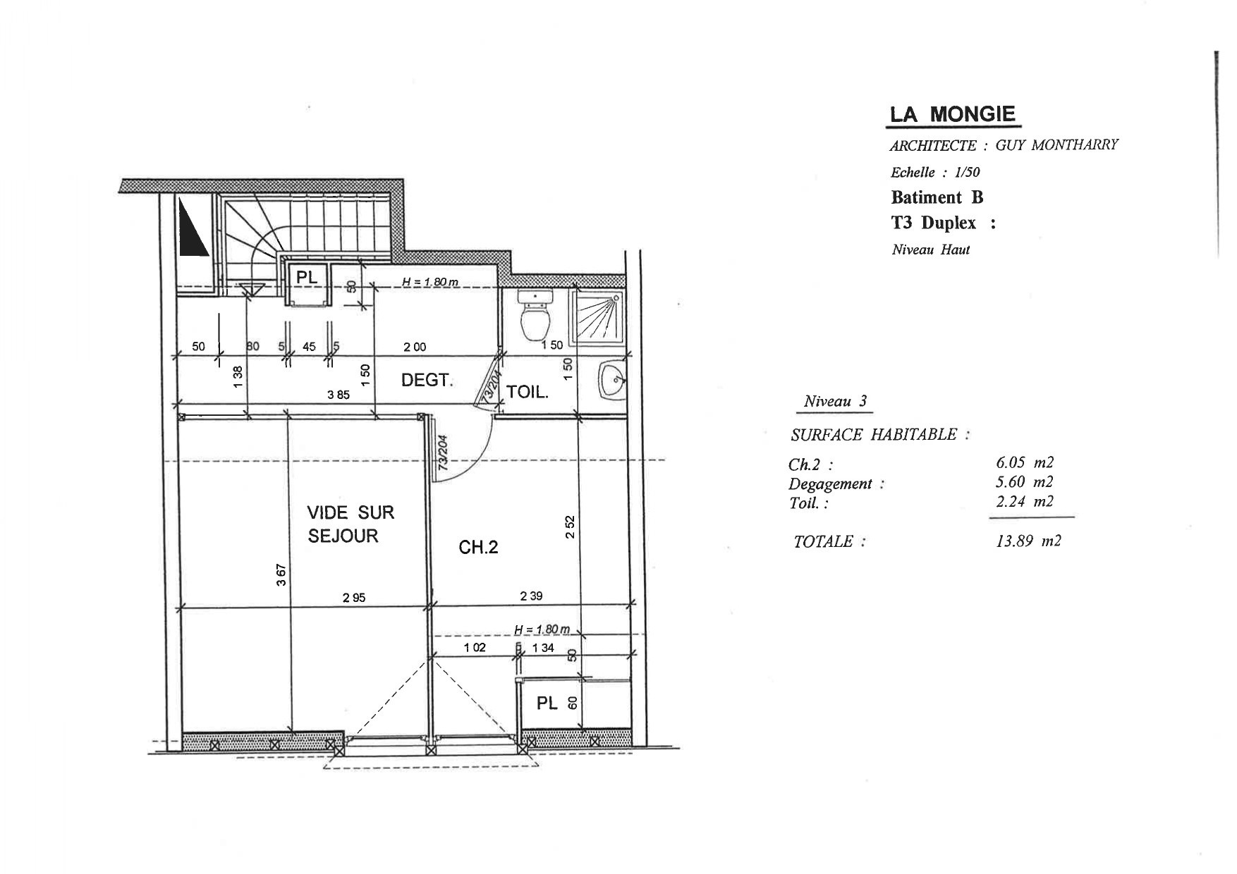
Composition
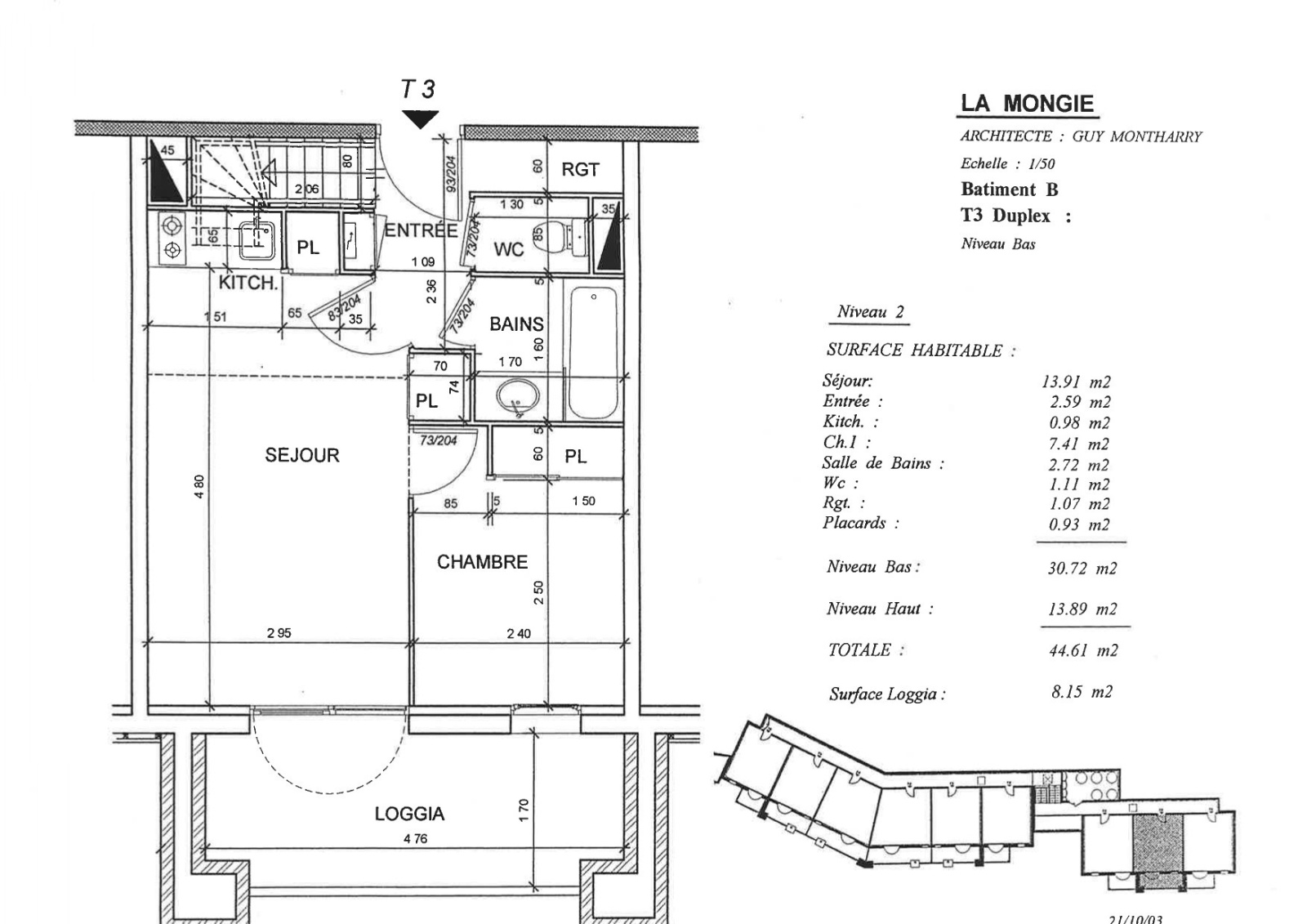
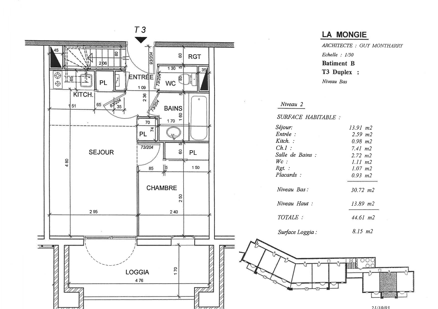
Rez de chaussée
salon/sejour 13.91 m²

salle de bain 2.72 m²

chambre 7.41 m²

WC 1.11 m²

balcon 8.15 m²

entrée 2.59 m²

Etage 1
mezzanine 5.60 m²

Salle d'eau - WC 2.24 m²

chambre 6.05 m²

Financier
Prix de vente 178 000 €
Les honoraires d'agence seront intégralement à la charge du vendeur  
Charges 254 €
Taxe foncière annuelle 1 078 €
Energie
DPE GES
Copropriété
Copropriété OUI
Lot n° 24
Quote Part annuelle des charges 3 048 €
plan de sauvegarde NON
statut du syndic pas de procédure en cours
Contacter pour ce bien
L'agence
Téléphone 0649107079
Adresse
84 avenue des mimosas 64700 Hendaye

* Champ obligatoire

Les informations recueillies sur ce formulaire sont enregistrées dans un fichier informatisé par La Boite Immo agissant comme Sous-traitant du traitement pour la gestion de la clientèle/prospects de l'Agence / du Réseau qui reste Responsable du Traitement de vos Données personnelles. La base légale du traitement repose sur l'intérêt légitime de l'Agence / du Réseau. Elles sont conservées jusqu'à demande de suppression et sont destinées à l'Agence / au Réseau. Conformément à la loi « informatique et libertés », vous disposez des droits d’accès, de rectification, d’effacement, d’opposition, de limitation et de portabilité de vos données. Vous pouvez retirer votre consentement à tout moment en contactant directement l’Agence / Le Réseau. Consultez le site https://cnil.fr/fr pour plus d’informations sur vos droits. Si vous estimez, après avoir contacté l'Agence / le Réseau, que vos droits « Informatique et Libertés » ne sont pas respectés, vous pouvez adresser une réclamation à la CNIL. Nous vous informons de l’existence de la liste d'opposition au démarchage téléphonique « Bloctel », sur laquelle vous pouvez vous inscrire ici : https://www.bloctel.gouv.fr Dans le cadre de la protection des Données personnelles, nous vous invitons à ne pas inscrire de Données sensibles dans le champ de saisie libre.
Ce site est protégé par reCAPTCHA, les Politiques de Confidentialité et les Conditions d'Utilisation de Google s'appliquent.

Découvrir nos outils