Espace propriétaire
fr

Votre recherche

Vendu
Bagnères-de-Bigorre (65200)

2 pièces - 35,39 m²

LA MONGIE - T2 AVEC GRANDE TERRASSE ET PARKING COUVERT

Ref : PDMC132
A propos de ce bien

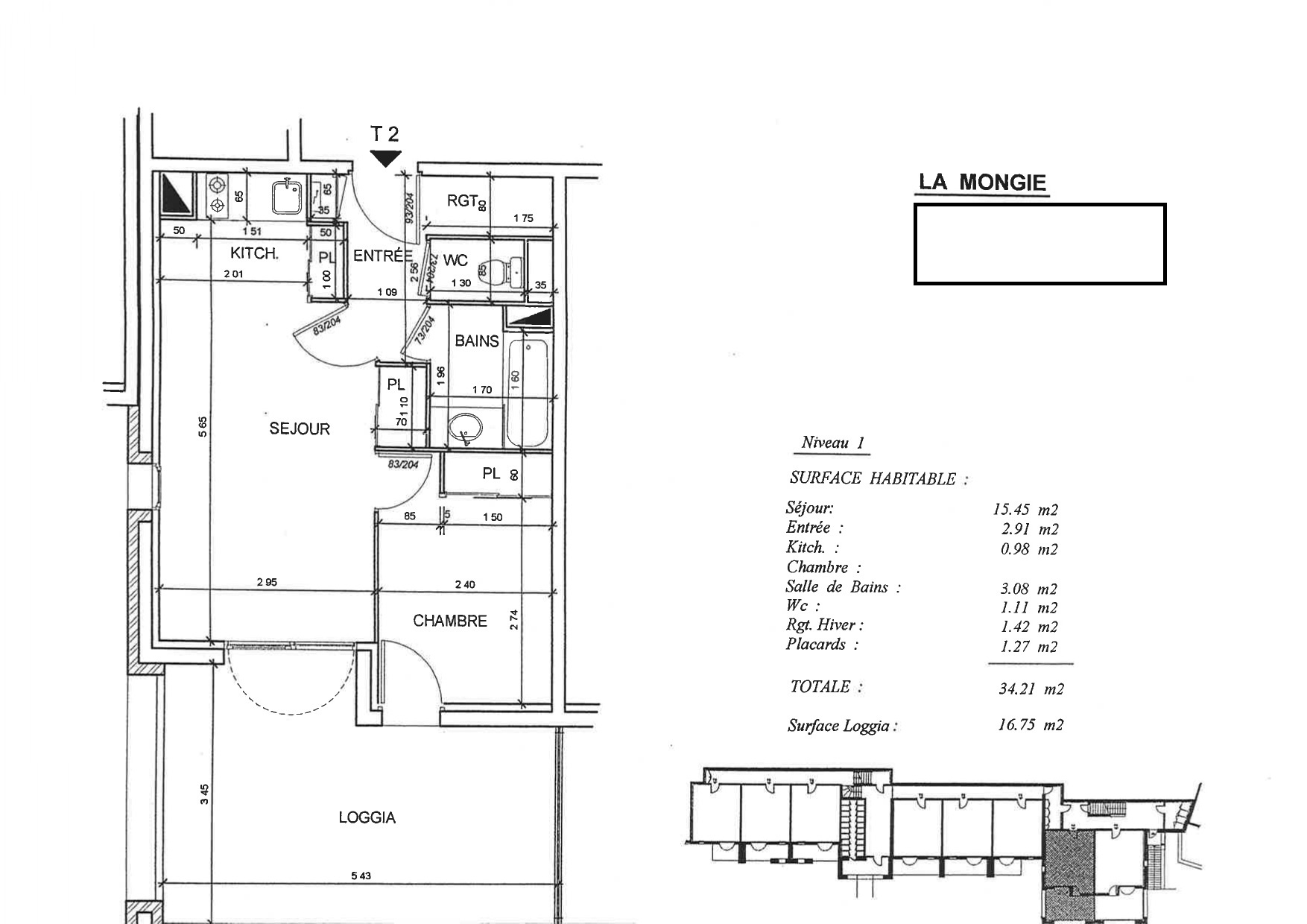
Cet appartement meublé de deux pièces, d'une superficie de 35 m² avec une magnifique terrasse de 16.75 m², est situé au premier étage et offre une vue spectaculaire sur les Pyrénées.

Son emplacement est privilégié dans le complexe. A deux pas de la piscine et du parking. Son orientation plein sud et sa proximité des pistes en font un choix idéal pour les passionnés de sports d'hiver. 

L'appartement se compose donant sur la terrasse, une kitchenette équipée, une chambre avec placard, une salle de bains, et des toilettes séparés. Une place en parking couvert vient compléter cet ensemble.

Pour un confort quotidien optimal, les résidents peuvent également profiter d'une piscine couverte chauffée et d'une salle de fitness.

Contrat de location saisonnière avec une agence immobilière en cours. Le propriétaire détermine librement les semaines qu'il souhaite mettre à disposition pour la location.Nous consulter pour plus d’informations.

Honoraires d'agence à la charge du vendeur 


Les informations sur les risques auxquels ce bien est exposé sont disponibles sur le site Géorisques
Descriptif de ce bien
Général
Code postal 65200
Surface loi Carrez (m²) 35,39 m²
Nombre de chambre(s) 1
Nombre de pièces 2
Etage 1
Ascenseur NON
Vue Pistes
Détails
Nb de salle de bains 1
Cuisine Kitchenette
Type de cuisine SEMI-EQUIPEE
Mode de chauffage Electrique
Type de chauffage Convecteur
Format de chauffage Individuel
Interphone NON
Visiophone NON
Terrasse OUI
Cave NON
Exposition Sud
Année de construction 2005
Composition
Rez de chaussée
entrée 4.80 m²

salle de bain 3.26 m²

Séjour / Kitchenette 16.78 m²

chambre 7.40 m²

terrasse 17.47 m²

Financier
Charges 250 €
Taxe foncière annuelle 805 €
Energie
DPE GES
Copropriété
Copropriété NON
Quote Part annuelle des charges 3 005 €
plan de sauvegarde NON
statut du syndic procédure en cours
Contacter pour ce bien
L'agence
Téléphone 0649107079
Adresse
84 avenue des mimosas 64700 Hendaye

* Champ obligatoire

Les informations recueillies sur ce formulaire sont enregistrées dans un fichier informatisé par La Boite Immo agissant comme Sous-traitant du traitement pour la gestion de la clientèle/prospects de l'Agence / du Réseau qui reste Responsable du Traitement de vos Données personnelles. La base légale du traitement repose sur l'intérêt légitime de l'Agence / du Réseau. Elles sont conservées jusqu'à demande de suppression et sont destinées à l'Agence / au Réseau. Conformément à la loi « informatique et libertés », vous disposez des droits d’accès, de rectification, d’effacement, d’opposition, de limitation et de portabilité de vos données. Vous pouvez retirer votre consentement à tout moment en contactant directement l’Agence / Le Réseau. Consultez le site https://cnil.fr/fr pour plus d’informations sur vos droits. Si vous estimez, après avoir contacté l'Agence / le Réseau, que vos droits « Informatique et Libertés » ne sont pas respectés, vous pouvez adresser une réclamation à la CNIL. Nous vous informons de l’existence de la liste d'opposition au démarchage téléphonique « Bloctel », sur laquelle vous pouvez vous inscrire ici : https://www.bloctel.gouv.fr Dans le cadre de la protection des Données personnelles, nous vous invitons à ne pas inscrire de Données sensibles dans le champ de saisie libre.
Ce site est protégé par reCAPTCHA, les Politiques de Confidentialité et les Conditions d'Utilisation de Google s'appliquent.

Découvrir nos outils